◆トップページに移動 │ ★目次のページに移動 │ ※文字列検索は Ctrl+Fキー
鋼管足場用の部材及び附属金具の規格第25条の規定に基づく適用除外について(その45)
平成19年5月18日基発第0518005号
(都道府県労働局長あて厚生労働省労働基準局長通知)
標記について、別紙1の申請に対し、別紙2のとおり構造規格を適用しない旨認定したので了知されたい。
○鋼管足場用の部材及び附属金具の規格第25条の規定に基づく適用除外の申請について
平成19年3月26日
(厚生労働省労働基準局長あて東京都中央区日本橋堀留町1―10―12中央ビルト工業株式会社代表取締役社長西本安秀通知)
鋼管足場用の部材及び附属金具の規格(昭和56年12月25日労働省告示第103号)第25条の規定に基づく適用除外を下記のとおり申請いたします。
記
1.申請品目
アルミ製布板(アルミアンチスリップ)
・YKH―2418a ・YKH―4818a ・YKHF―2418a ・YKHF―4818a
・YKH―2415a ・YKH―4815a ・YKHF―2415a ・YKHF―4815a
・YKH―2412a ・YKH―4812a ・YKHF―2412a ・YKHF―4812a
・YKH―2409a ・YKH―4809a ・YKHF―2409a ・YKHF―4809a
・YKH―2406a ・YKH―4806a ・YKHF―2406a ・YKHF―4806a
2.適用除外対象条文
鋼管足場板用の部材及び附属金具の規格
第1章 第4節 床付き布わく 第20条第1項 材料等
3.規定と異なる部分
床材、布材及びはり材の材料がアルミニウム合金である。
4.申請理由
申請品目のアルミ製布板は、軽量化を図るため主要材料にアルミ材を使用しています。
軽量化することにより、足場の荷揚げ・組立て・解体時の作業員の負担を軽減し、作業効率が高まります。また、持ち運びが容易なため安全性が向上します。
5.その他の規格保持について
(1) 強度等の値について
本規格第22条に定める強度等について社団法人仮設工業会において行った試験の結果は表1―1・表1―2のとおりであり、これらの規定に適合するものであること。
表1―1
型式 |
YKHF―2418a |
||||||
供試体No. |
1 |
2 |
3 |
4 |
5 |
構造規格 |
|
たわみ及び曲げ試験 |
荷重0.94kN時の鉛直たわみ量(mm) |
7.8 |
8.5 |
7.7 |
7.8 |
8.1 |
11以下 |
中央部の最大強度(kN) |
4.51 |
4.8以上 |
4.8以上 |
4.8以上 |
4.2 |
2.35以上 |
|
供試体No. |
6 |
7 |
8 |
9 |
10 |
構造規格 |
|
つかみ金具の本体及び取付部のせん断強度(kN) |
16.8以上 |
16.8以上 |
16.8以上 |
16.8以上 |
16.8以上 |
8.40以上 |
|
つかみ金具の外れ止めのせん断強度(kN) |
6.0以上 |
6.0以上 |
6.0以上 |
6.0以上 |
6.0以上 |
2.94以上 |
|
(試験実施年月日 平成18年10月26日)
表1―2
型式 |
YKHF―4818a |
||||||
供試体No. |
1 |
2 |
3 |
4 |
5 |
構造規格 |
|
たわみ及び曲げ試験 |
荷重1.87kN時の鉛直たわみ量(mm) |
9.0 |
9.1 |
9.0 |
9.5 |
9.0 |
11以下 |
中央部の最大強度(kN) |
8.0以上 |
8.0以上 |
8.0以上 |
8.0以上 |
8.0以上 |
4.70以上 |
|
供試体No. |
6 |
7 |
8 |
9 |
10 |
構造規格 |
|
つかみ金具の本体及び取付部のせん断強度(kN) |
23.3 |
21.3 |
22.9 |
21.6 |
19.3 |
16.8以上 |
|
つかみ金具の外れ止めのせん断強度(kN) |
6.0以上 |
6.0以上 |
6.0以上 |
6.0以上 |
6.0以上 |
2.94以上 |
|
(試験実施年月日 平成18年10月26日)
(2) 材質及び構造について
表2に示すとおり、本規格第20条(床材、布材及びはり材は除く)及び第21条の規定に適合するものであること。
表2
種類 |
床付き布わく |
||
型式 |
YKH―2418a YKHF―2418a YKH―2415a YKHF―2415a YKH―2412a YKHF―2412a YKH―2409a YKHF―2409a YKH―2406a YKHF―2406a YKH―4818a YKHF―4818a YKH―4815a YKHF―4815a YKH―4812a YKHF―4812a YKH―4809a YKHF―4809a YKH―4806a YKHF―4806a |
構造規格 |
|
材料 |
つかみ金具 |
SS400 |
SS400(第20条) |
構造及び寸法 |
床材間のすき間(mm) |
0 |
30以下(第21条第2号) |
長さ(mm) |
YKH―2418a、YKH―4818a(1800) |
1850以下(第21条第3号) |
|
YKH―2415a、YKH―4815a(1500) |
|||
YKH―2412a、YKH―4812a(1200) |
|||
YKH―2409a、YKH―4809a(900) |
|||
YKH―2406a、YKH―4806a(600) |
|||
YKHF―2418a、YKHF―4818a(1829) |
|||
YKHF―2415a、YKHF―4815a(1524) |
|||
YKHF―2412a、YKHF―4812a(1219) |
|||
YKHF―2409a、YKHF―4809a(914) |
|||
YKHF―2406a、YKHF―4806a(610) |
|||
幅(mm) |
YKH―2418a、YKHF―2418a、YKH―2415a、YKHF―2415a、YKH―2412a、YKHF―2412a、YKH―2409a、YKHF―2409a、YKH―2406a、YKHF―2406a(240) |
240以上500以下(第21条第4号)低層わく用500(第21条第4号) |
|
YKH―4818a、YKHF―4818a、YKH―4815a、YKHF―4815a、YKH―4812a、YKHF―4812a、YKH―4809a、YKHF―4809a、YKH―4806a、YKHF―4806a、(480) |
|||
つかみ金具の取付方法 |
ボルト及びUナット(M8)により接合したもの |
溶接又はリベット等により接合したもの(第21条第6号) |
|
つかみ金具板厚(単板型のもの)(mm) |
8 |
7.2以上低層わく用5.4以上(第21条第7号) |
|
つかみ金具外れ止めの有無 |
有 |
有(第21条第8号) |
|
6.規格第20条の規格と異なる部分に関する検討
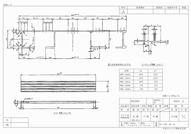
(1) 規格第20条では、床材はSPHC又はXS42の規格、布材及びはり材はSPHCの規格の材料を使用するものと定められているのに対し、本申請品は床材・布材・はり材共にA6063S―T5のアルミニウム合金を使用している。
床材・布材は押出成形材の利点を活かし一体化し、肉厚を1.4mmとている。また、はり材はチャンネル形の押出成形材を使用し肉厚を2.0mmとすることで断面性能を向上させ、表1―1・表1―2のとおり規格第22条で定める強度を保有し、且つ、規格第20条で定める材料を使用したものと同等以上の強度を有する。


別添1―1

別添1―2

別添1―3

別添1―4

別添1―5

別添1―6

別添1―7

別添1―8

別添1―9

別添1―10

別添1―11

別添1―12

別添2
1.ボルトの使用について
本申請品は、つかみ金具に穴加工を施し、布わくとの直接緊結方法としてボルト・ナットを採用しています。
以下に、ボルトの仕様及び強度検討を行います。
2.ボルトの仕様
1) 品名:六角ボルト
2) 形状:M8×25
3) 材質:SUS304
4) 材料強度:700N/mm2
5) 直径:外径8mm
6) 有効断面積:36.6mm2(JISB1082参照)
3.ボルト1本のせん断破壊強度
せん断破壊強度=材料強度(引張強さ)×(1/√3)×ボルトの有効断面積
=700×(1/√3)×36.6
=14791(N)
=14.79(kN)
4.つかみ金具部の反力
1) つかみ金具の本体及び取付部のせん断試験より、
P(kN)の最小値が幅(mm)×3.5×10-2以上なので、
480×3.5×10-2=16.8(kN)
2) つかみ金具1ヶ所当たりに加わる負担荷重(試験荷重)P1は
P1=16.8/4=4.20(kN)
5.取付ボルトの強度
1) ボルトに加わる反力の計算
つかみ金具に作用する反力をR1とすると、
R1=P1×73/40
=7.67(kN)
同様に、反力R2は、
R2=P1×113/40
=11.87(kN)
つまり、これらがボルトに働くせん断荷重に等しい。

6.つかみ金具のボルトの強度
つかみ金具1ヶ所の負担荷重(kN) |
ボルト1本のせん断破壊荷重(kN) |
計算による発生せん断荷重(kN) |
判定 |
4.20 |
14.79 |
11.87 |
試験荷重では破壊しない |
以上の強度計算結果により、同等以上であることが確認されました。
別添3―1
主要部材材質
|
部材名称・形状 |
材質 |
型番 |
幅240 |
押出形材フレーム材 |
JIS―H4000 A6063S―T5 |
HE9071 |
幅480 |
押出形材フレーム材 |
JIS―H4100 A6063S―T5 |
LY2424 |
別添3―2

別添3―3

○鋼管足場用の部材及び附属金具の規格第25条の規定に基づく適用除外について
平成19年5月18日基発第0518004号
(中央ビルト工業株式会社代表取締役社長西本安秀あて厚生労働省労働基準局長通知)
平成19年3月26日付け申請のあった下記部材に係る標記については、申請のとおり認めるので通知する。
記
床付き布わく
YKH―2418a,YKH―4818a,YKHF―2418a,YKHF―4818a
YKH―2415a,YKH―4815a,YKHF―2415a,YKHF―4815a
YKH―2412a,YKH―4812a,YKHF―2412a,YKHF―4812a
YKH―2409a,YKH―4809a,YKHF―2409a,YKHF―4809a
YKH―2406a,YKH―4806a,YKHF―2406a,YKHF―4806a