◆トップページに移動 │ ★目次のページに移動 │ ※文字列検索は Ctrl+Fキー
鋼管足場用の部材及び附属金具の規格第25条の規定に基づく適用除外について(その47)
平成19年8月23日基発第0823003号
(都道府県労働局長あて厚生労働省労働基準局長通知)
標記について、別紙1の申請に対し、別紙2のとおり構造規格を適用しない旨認定したので了知されたい。
○鋼管足場用の部材及び付属金具の規格第25条の規定に基づく適用除外の申請について
平成19年7月9日
(厚生労働省労働基準局長あて東京都品川区東品川2―2―20日軽金アクト株式会社代表取締役井上厚通知)
鋼管足場用の部材及び付属金具の規格(昭和56年12月25日労働省告示第103号)第25条の規定に基づく適用除外を下記のとおり申請いたします。
記
1.申請品目
アルミニウム合金製床付き布わく
(YN―50W―1829、YN―50W―1524、YN―50W―1219、YN―50W―914)
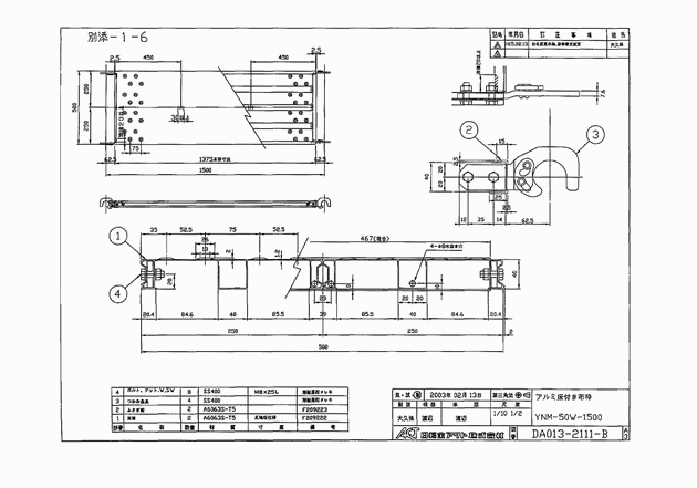
(YNM―50W―1800、YNM―50W―1500、YNM―50W―1200、YNM―50W―900、YNM―50W―600、YNM―50W―500)
2.適用除外条文
第1章第4節床付き布わく 第20条 材料等
3.規定と異なる部分
(A) 床材、布材及びはり材の材料が、アルミニウム合金材であること。
4.申請理由
別添―1に示す申請品目のアルミニウム合金床付き布わくは、材料にアルミニウム合金材を使用するため、従来の同寸法のものに比べ軽量化が計れる。
これにより高所作業での重量作業に伴う墜落災害等の危険を軽減することが出来ると考えられるため。
5.その他の規格保持について
(1) 強度等の値について
本規格第22条に定める強度等について(社)仮設工業会において行った試験の結果は、表―1のとうりであり、これらの規格に適合するものであること。
YN―50W―1829
表―1
たわみ及び曲げ試験
供試体 No. |
1 |
2 |
3 |
4 |
5 |
荷重 1.95KN時の鉛直たわみ量 [mm] |
10.8 |
11.0 |
10.1 |
10.8 |
10.5 |
強度 [KN] |
8以上 |
8以上 |
8以上 |
8以上 |
8以上 |
厚生労働省規格による値 |
たわみ量:11mm以下 |
||||
|
強度:4.90KN以上 |
||||
つかみ金具の本体及び取付部のせん断試験
供試体 No. |
6 |
7 |
8 |
9 |
10 |
強度 [KN] |
20.8 |
21.7 |
22.4 |
21 |
22.2 |
厚生労働省規格による値 |
強度:17.5KN以上 |
||||
つかみ金具の外れ止めのせん断試験
供試体 No. |
6 |
7 |
8 |
9 |
10 |
強度 [KN] |
6以上 |
6以上 |
6以上 |
6以上 |
6以上 |
厚生労働省規格による値 |
2.94KN以上 |
||||
(試験実施年月日:平成19年06月19日)
(2) 材質及び構造について
次の表―2に示すとおり、本規格21条(第1項第1号を除く)の規定に適合するものであること。
表―2
種類 |
床付き布わく |
||
型式 |
別表参照 |
構造規格 |
|
材料 |
つかみ金具(単板型もの) |
SS400 |
SS400(第20条) |
構造及び寸法 |
床材間のすき間(mm) |
0 |
30以下(第21条第2号) |
長さ(mm) |
別表参照 |
1850以下(第21条第3号) |
|
幅(mm) |
|
240以上500以下(第21条第4号) |
|
|
つかみ金具の取付方法 |
ボルト・ナット |
溶接またはリベットにより接合したもの(第21条第6号) |
|
つかみ金具(単板型のもの)の板厚(mm) |
|
7.2以上(第21条第7号) |
|
つかみ金具の外れ止めの有無 |
有 |
有(第21条第8号) |
別表
型式 |
長さ(mm) |
YN―50W―1829 |
1829 |
YN―50W―1524 |
1524 |
YN―50W―1219 |
1219 |
YN―50W―914 |
914 |
YNM―50W―1800 |
1800 |
YNM―50W―1500 |
1500 |
YNM―50W―1200 |
1200 |
YNM―50W―900 |
900 |
YNM―50W―600 |
600 |
YNM―50W―500 |
500 |
主要部材の材質
床材及び布材 |
JIS A6063S―T5 |
はり材 |
JIS A6063S―T5 |
6.規格第20条及び、第22条の規格と異なる部分に関する検討
本製品は、床材及び布材を押出し加工により、一体化させたアルミニウム合金製の床材、並びに押出し加工されたアルミニウム合金製のはり材を使用するものである。
500幅(50W)断面

規格第20条では、床材、布材及びはり材の材料をJIS G3131に定める(SPHC)の規格のものと定めているのに対し、本製品はJIS H4100アルミニウム及びアルミニウム合金押出し形材(A6063S―T5)を使用している。
材料による強度低下を補うために、アルミニウム合金の押出し形材の利点をいかし、一体化した押出し形材断面の、補強リブ部に箱形状を配置し、変形・ねじれに強くまた、板厚も強度上の効果が大きい部分に厚めに配置するなどし軽量で変形しにくく、強くなっている。これらの理由により強度的に問題はないと考えられる。
7.その他本申請品の特徴に関する検討
第21条6号では、つかみ金具を布枠又ははり材に溶接し、又はリベット等により接合したものであることとあるが、本申請品はボルト・ナットにて取り付け固定している。
ボルトでの固定は、別添2及び社団法人仮設工業会において行った試験の結果により、溶接又はリベット接合のものと同等以上の強度を有すると考えられる。ボルト・ナット部にははゆるみ止め対策としバネ座金を使用し、容易にボルトが外れない構造になっている。
別添―1











別添2




○鋼管足場用の部材及び附属金具の規格第25条の規定に基づく適用除外について
平成19年8月23日基発第0823002号
(日軽金アクト株式会社代表取締役井上厚あて厚生労働省労働基準局長通知)
平成19年7月9日付け申請のあった下記部材に係る標記については、申請のとおり認めるので通知する。
記
床付き布わく
YN―50W―1829,YN―50W―1524,YN―50W―1219,YN―50W―914
YNM―50W―1800,YNM―50W―1500,YNM―50W―1200
YNM―50W―900,YNM―50W―600,YNM―50W―500